Détails supplémentaires
Nueva promoción en El Pilar de La Mola, Formentera.
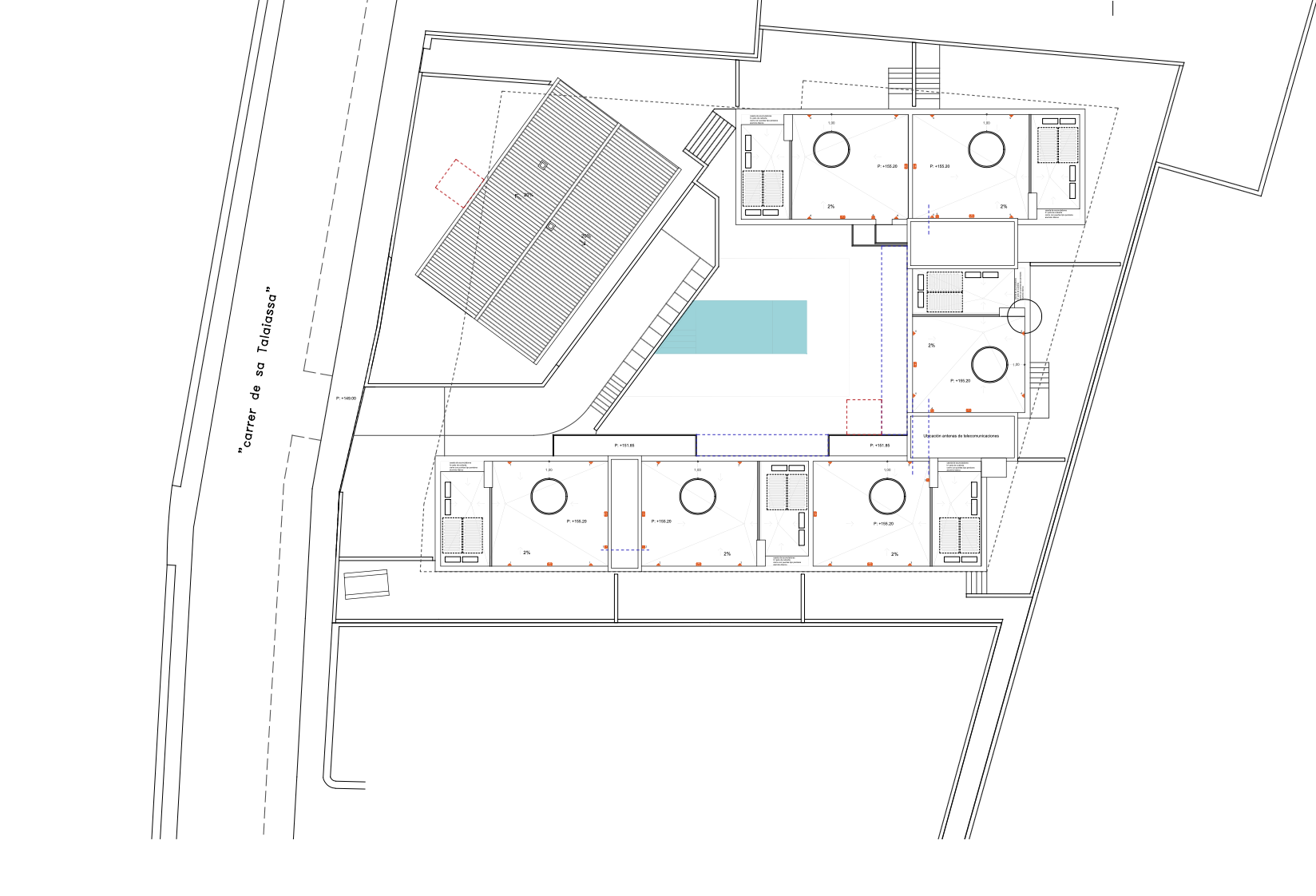
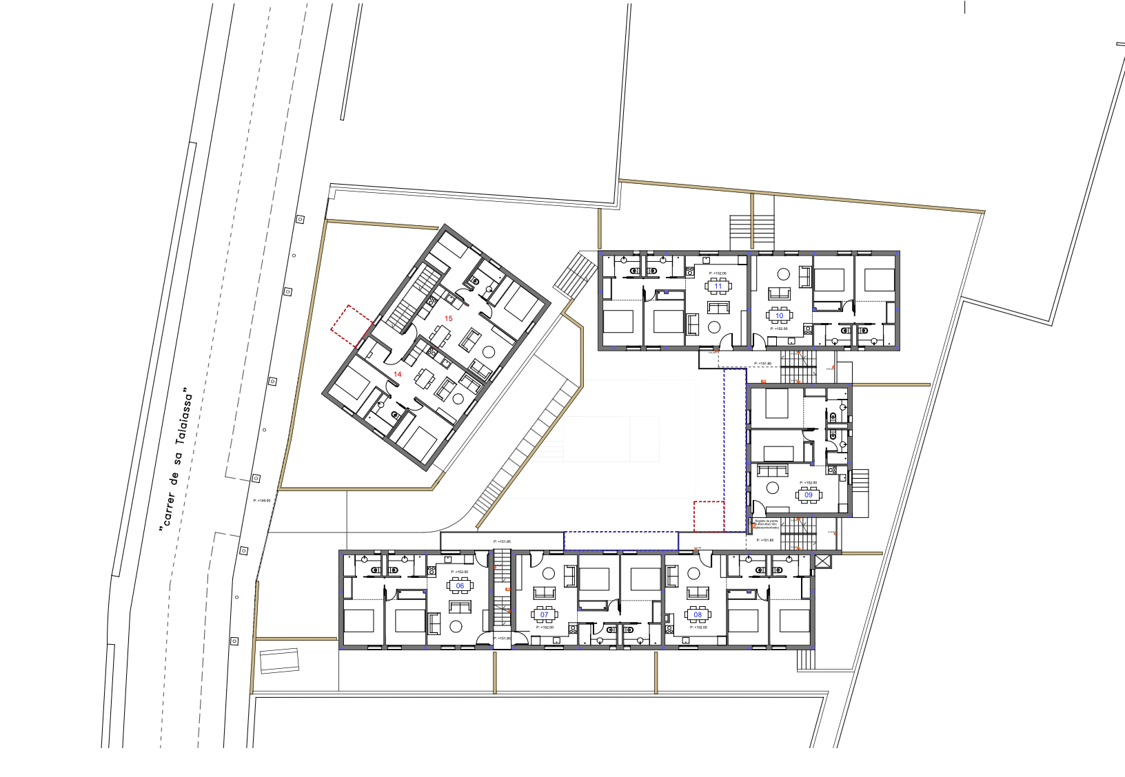
15 Viviendas desde 60m2 con dos dormitorios y dos baños. Además: plaza de aparcamiento, trastero, piscina comunitaria y terraza privativa con minipiscina de 5 plazas desde 425.000€.
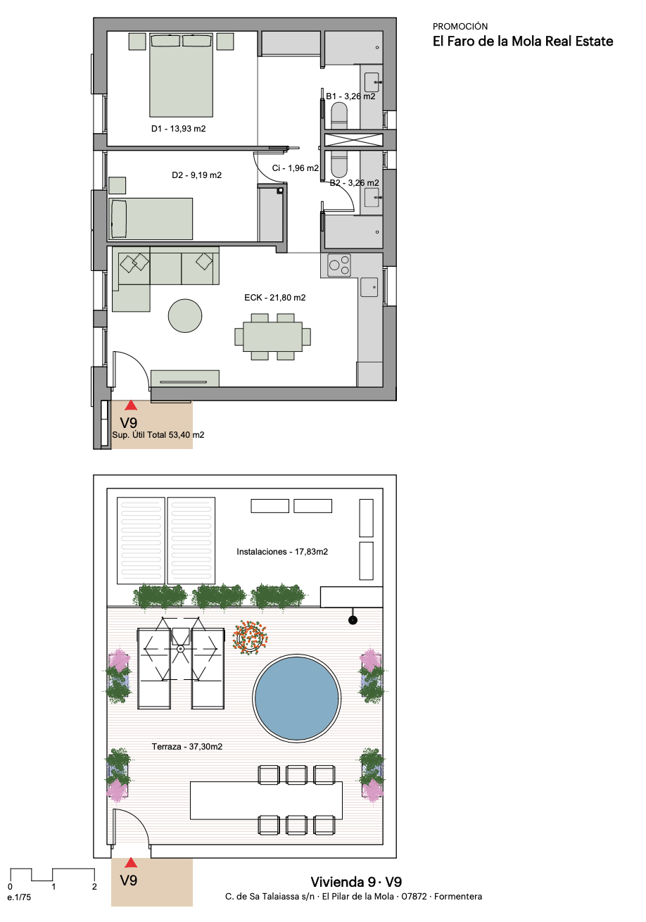
Las viviendas están proyectadas para satisfacer tus necesidades. La cocina se encuentra integrada en el salón para dotar al conjunto de una mayor sensación de amplitud. Tu vivienda estará equipada con 2 baños, uno en la suite. La luminosidad de todos los espacios es la nota predominante en las viviendas, con ventana o acceso al exterior en todos los casos.
Las terrazas son una parte fundamental en la promoción El Faro de la Mola. Todas las viviendas disponen de un espacio donde disfrutar de su jacuzzi, solarium e incluso hacer una barbacoa. Además, para que aproveches al máximo la luz natural, tu nueva vivienda ofrece accesos al exterior desde todas las estancias.
El Faro de la Mola promoción se encuentra en Formentera, una isla privilegiada, con el mayor grado de protección de todo el mediterraneo. La pitiusa no sólo es conocida por tener las mejores playas turquesas del mundo, también por una amplia y exquisita variedad gastronómica, exclusivos chiringuitos de playa, restaurantes con vistas increíbles y una inigualable oferta naútica. Formentera es el lugar soñado para una estancia en familia, en pareja o con amigos.
































