Detalles adicionales
Con más de 25.000m2, esta parcela ubicada en el centro de la Isla, a escasos minutos del pueblo de San Rafael y del puerto de Ibiza, cuenta con proyecto y licencia de edificación de una vivienda unifamiliar con anexo y piscina, con una superficie total construida de aprox 440m2.
DATOS CLAVE DE LA PROPIEDAD
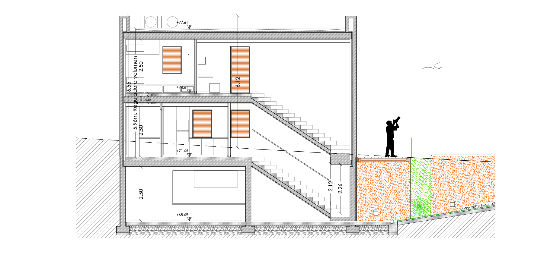
VIVENDA PRINCIPAL – 408,97m2 útil
Planta baja – 163,80 m2 sup. útil
En la planta baja encontramos el salón-cocina-comedor, lavadero-despensa, un aseo, y tres habitaciones en suite.
Planta primera – 39,79 m2 sup. útil
En la planta primera encontramos un estudio y un cuarto dormitorio en suite con vestidor y acceso a exterior donde se encuentra una terraza descubierta con jacuzzi.
Planta sótano – 205,38 m2 sup. útil
Ideal para ubicar un gimnasio, bodega, zona de cine, zona wellnes etc, cuenta con la zona de aparcamiento, aseo, almacén y cuarto de máquinas.
ANEXO – 30,87m2 sup. útil
En este edificio encontramos otro dormitorio, baño con zona de lavabo y un práctico espacio – sala de estar.
NATURALEZA Y UBICACIÓN EN PERFECTO EQUILIBRIO
Esta espectacular finca se encuentra en Puig des Planells, Ibiza, rodeada de bosque mediterráneo consolidado, con su propia pequeña montaña y un bonito torrente seco que cruza la finca frente a la vivienda.
Un lugar que garantiza máxima privacidad y tranquilidad absoluta, pero con la ventaja real de estar a solo 10 minutos de la ciudad de Ibiza y del puerto.
El amplio terreno permite crear jardines a medida, terrazas, espacios chill-out y zonas exteriores únicas para disfrutar al aire libre con total privacidad.
PROYECTO CON OBTENCIÓN INMINENTE DE LICENCIA
Proyecto completo, desarrollado durante mucho tiempo, con la licencia de obra en trámite muy avanzado.
Gran ahorro de tiempo: posibilidad de iniciar la construcción de manera prácticamente inmediata.
Diseño moderno, elegante y perfectamente adaptado a la esencia ibicenca: cubiertas planas, piedra natural, carpintería tradicional y espacios abiertos.
Una oportunidad perfecta para quienes buscan agilidad, seguridad jurídica y un proyecto listo para empezar.
ESPACIO EXTERIOR
Parcela rústica de 25.500 m2 de bosque privado con vegetación autóctona.
Pequeña montaña dentro de la finca que aporta carácter, privacidad y vistas elevadas al entorno natural.
Bonito torrente natural seco frente a la vivienda, ideal para dar personalidad al jardín.
Gran espacio exterior para diseñar jardines amplios, terrazas, zonas chill-out y espacios de relax a medida.

























































































































































































